
Court Fort in Nandoli is imagined foremost as a home, an everyday retreat on the outskirts of Ahmedabad, Gujarat, where slow living meets meaningful solitude. Conceived as a residence for an urban farmer seeking a life closer to land, seasons, and quiet rhythms, the project reinterprets the idea of a holiday home: not as a place you escape to occasionally, but a place that allows you to feel “away” every single day.
Here, living, resting, growing, and even working coexist without conflict. It is a residence first, a place to unwind and reset, and only then, when needed, a gentle home-like workspace that supports focus without disturbing the calm.
The site unfolds across four distinct landscapes that collectively shape the experience of home. Over sixty percent of the eastern edge is dedicated to a private farm, creating a daily relationship with soil, produce and changing seasons, an unusual luxury for contemporary living.
At the heart of the property lies a natural pond, wrapped in wild greens, forming a climatic anchor and a reflective pause visible from most spaces in the home. To the southwest, a dense forest plantation becomes a world of its own: birdsong at dawn, shifting shadows in the afternoon, and an ecosystem that thrives independent of human presence. Within this expanse sits the built form, quiet, minimal and deliberately non-intrusive. It reveals itself slowly, almost shyly, from behind foliage, allowing the land to take precedence.
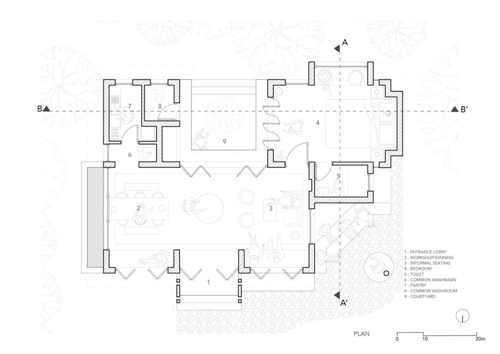
The architecture is organised as a C-shaped, introverted dwelling that embraces a private courtyard to the south. This courtyard becomes the emotional and spatial centre of the home, a calm void around which daily life orbits. A clear axis connects it to the northern entrance, subtly dividing the main living volume into two parts, an informal lounge on one side and a more structured living-dining space on the other.
Together, they create a fluid, open environment that shifts easily between restful leisure and productive focus, embodying the idea of a home that supports work only when one chooses to engage with it.




Materials reinforce the sensibility of a vacation home grounded in nature. Exposed load-bearing brick walls create warm, cocoon-like interiors, while a simple RCC pitched roof settles over the spaces with quiet assurance. Inside, lime-plastered surfaces, red and grey recycled brick, polished concrete floors and black kadappa edging form a palette that is tactile, earthy and easy to live with. Except for the cast-in-situ ledge seating and bed, the furniture is light, movable and adaptable, allowing the home to transform for intimate gatherings, solitary weekends or occasional workshops without ever losing its residential soul.
The bedroom, opening toward a fragrant Champa tree in the courtyard, forms the most private zone of the home, a serene retreat that strengthens the project’s essence as a place for rest. Utility spaces, accessible directly from the courtyard, keep the home functional for family life, visiting guests, or extended stays. At the north-west edge, the architecture gently gives way to a small amphitheatre that overlooks the farm. This space invites conversation and community, offering an outward-facing counterpoint to the inward quiet of the courtyard.
Ultimately, Court Fort exemplifies a life lived in flow, with nature, with one’s own pace, and with the flexibility of modern living. It is a residence that feels like a getaway, a vacation home that supports real daily life, and a place where work, when it happens, feels less like a demand and more like a choice. It is at once a home and an away-home, shaped by land, climate and the desire for a more intentional way of living.
Gallery:












Gallery (Drawings):





Project Details:
Name: Court Fort
Location: Nandoli, Ahmedabad, India
Site Area: 1380 sq mt
Built area: 125 sq mt
Typology: Residential Architecture
Designed by: Compartment S4
Contractor: Sanjaybhai Contractor & Team
Client: Urban Khetti (Tanya Khambolja)
Photography: Dhrupad Shukla
Description: Compartment S4





