Site Area : 1,000 sqm.
Total Built up Area : 30,000 sqft.
Number of rooms : 40

Client’s Vision :
The project was envisaged by the client as a new beginning at the holy pilgrimage spot of Katra from where the arduous journey to Mata Vaishno Devi starts. The area’s business is primarily thriving on the tourism generated from these devotees. The area is swarming with hotels and lodges of all nature and sizes thronging with devotees needing a resting place before and after the pilgrimage.
Project Brief:
The client wanted a landmark to be developed against the backdrop of a non-aesthetic and extremely chaotic urban fabric, wherein each building was shouting about itself pitching against the other for garnering attention with loud features and shining tints of colored glass. His intention was to build a hotel offering lavish room sizes at a similar or better quality while at a price cheaper than the five-star hotels of that area and that was the benchmark set for the architect. They also aimed for a better quality of spaces that fostered a sense of well being and offering an immediate respite to the extremely fatigued travelers.
Another important intention was to have a strikingly different facade from the regular boxed arrangement of windows and ornamental balconies looking onto the street to a more novel and fresh approach that would be more thought through. Something more calm and pleasant than what existed and that resonated well within the street.
Site :
Located on the Railway road, hence it is a very favourable location for the people entering the town from the only Railway station of the area. Also, the site is slightly set back from the main road, but has a whole gamut of excellent views of the entire mountain range that is sparkling lit at night at the rear northeastern side.
Massing & Orientation :
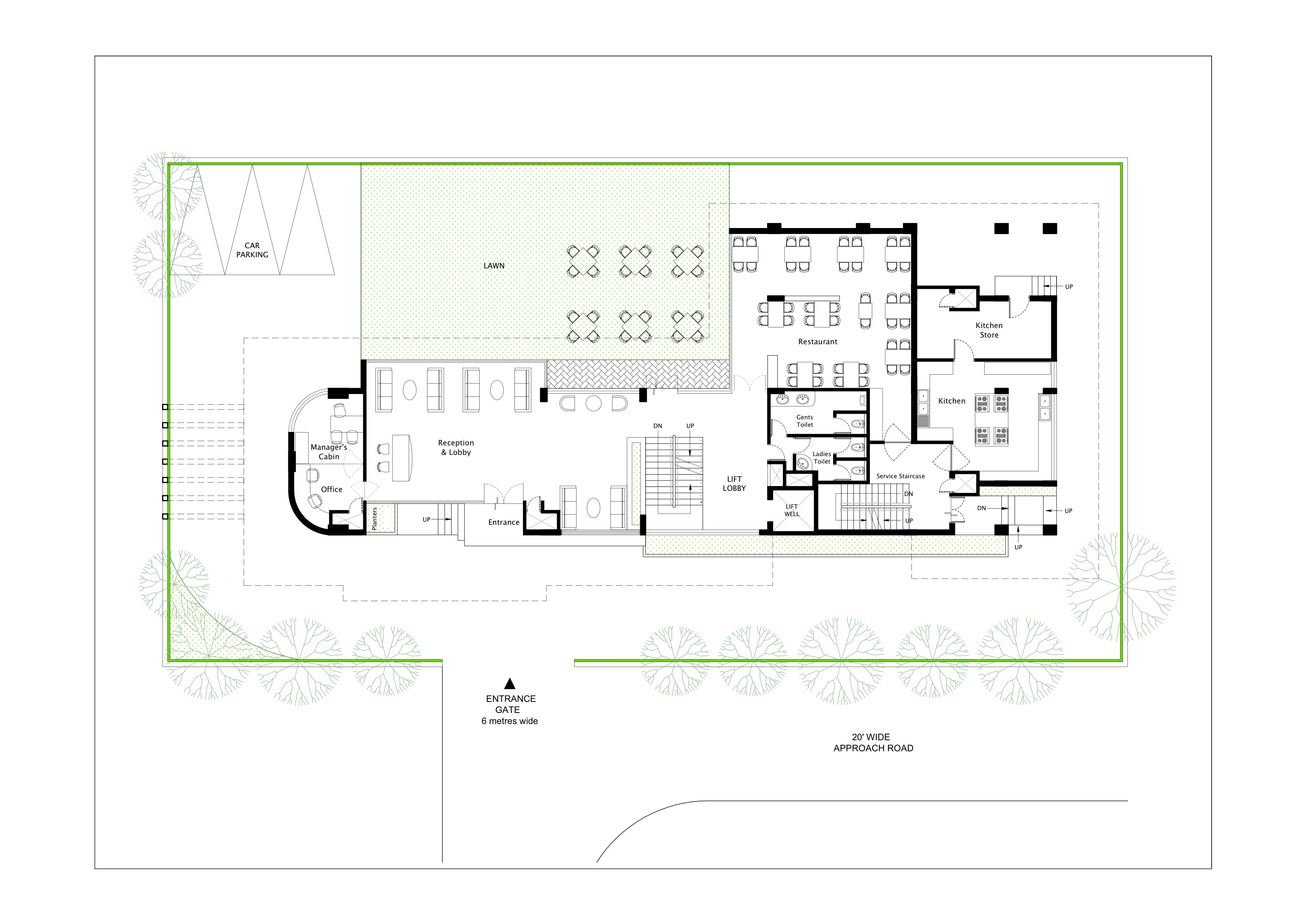
The site was a bonus as it had an uninterrupted view of the scenic mountains and ringed a possibility of orienting the rooms towards them at the rear, hence making it an introverted building rather than one opening onto the main street. Also, Vaastu and climatic conditions favoured this particular alignment as the main street was southwest-facing indicative of the harsh sun during summers as well as obnoxious views in a striking contract to the skyline at the rear. Hence, the initial idea started with making the building porous at the rear side and closed at the front
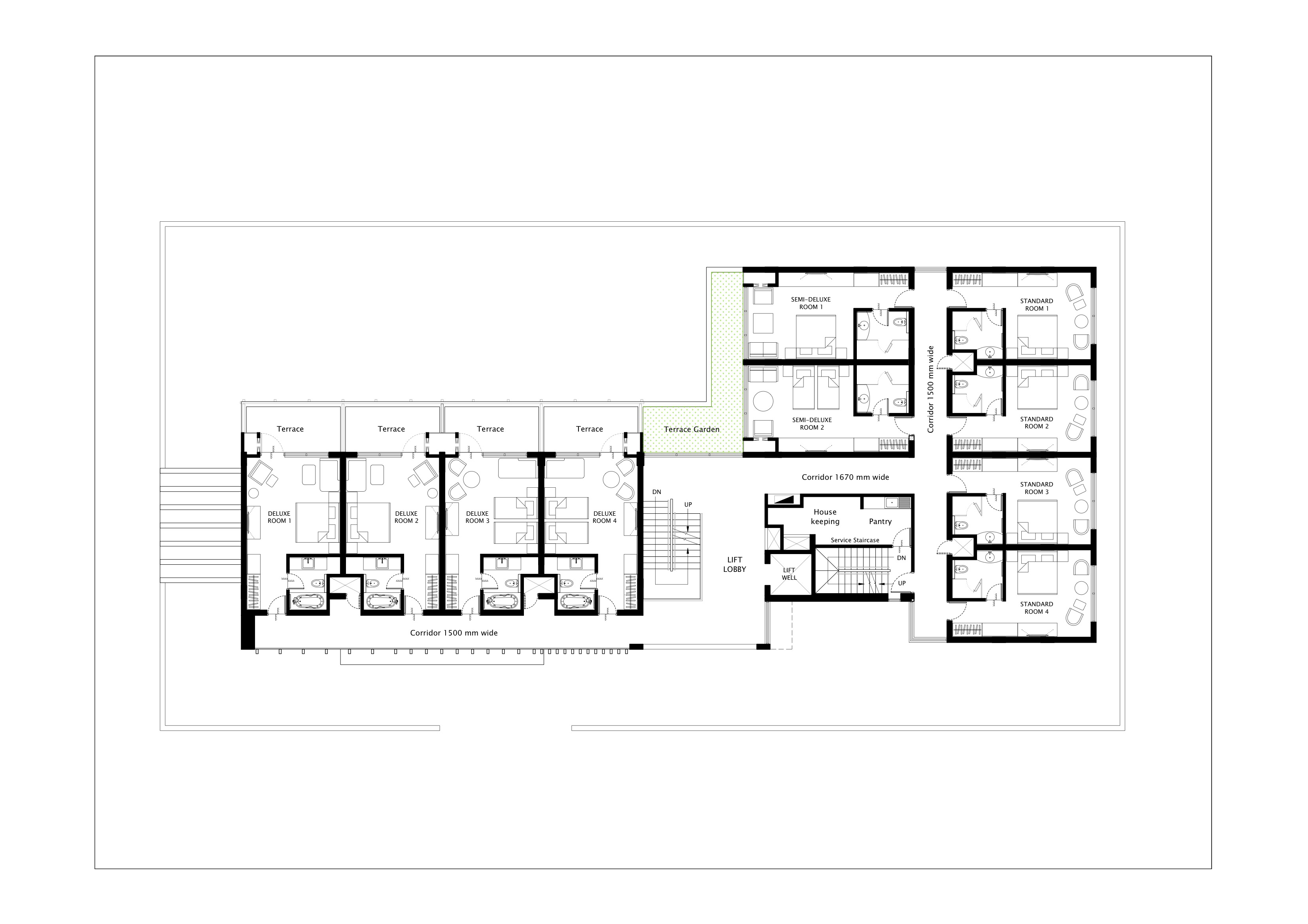
The second priority was to introduce a breathing green lawn into the space acting as a foreground before the mountain views, for which the rooms above had to be cantilevered (in order to free up space at the ground level) having flat seamless soffits that required a lot of co-ordination work between the structure and the services. Also, Vaastu was important and in this arrangement of massing, the northeast sacred corner was left empty.
Elevation :
Facade dealt with only vertical and horizontal louvres being the main elements interacting with the sunlight and adding to the quality of the space as well as some protection from the direct glare as well as screening the views of the street.
Energy Efficiency:
- Introducing daylight while balancing the thermal gain was a priority and hence all rooms, restaurant, lobbies and corridors are well washed with daylight throughout the day with absolutely no use of artificial lighting thereby conserving energy as well as reducing the cooling load.
- Cantilevered rooms above the ground floor provide sufficient shade to protect the ground floor lobby from getting hot during summers.
- The design also incorporates terrace gardens at each floor as the visual connect to the green becomes an integral part of the design.
- Also, the design has integrated green walls (creeper laden boundary wall adding to the greenery of the lawn as well as offering immediate psychological comfort to the visitors in the lobby as well as restaurant) as a critical part of the scheme and hence continued the same language of green in the interiors as well with elaborate planters laid out at every floor.
- No heat gain in the rooms due to their northeast orientation providing thermal comfort to the travellers and thereby reducing the consumption of air – conditioning is a major plus point.
- Rare openings on the south west that is mostly blocked with louvres also create an interesting interplay of light and shadow.
- Extremely well lit and porous lobby allowing the garden as well as mountain views to anyone entering the hotel.
Drawings:
Images:






One Response
It’s a fabulous design
I am surprised to see one in Katra
It’s a blessing for people visiting Katra
I recommend it to everyone coming for Mata Darshanam