
South Zahir Paradise by SHATOTTO, is a 14 story contemporary residential building located in Dhanmondi, Road 6A, Dhaka, Bangladesh. With a lake on the south side of the building and a public mosque on the North Road, this building offers both aesthetic and functional features. Its proximity to numerous shopping complexes and other public facilities makes the residence an excellent option for those seeking convenience. The nearby lake brings in wind from the south side, allowing for natural cooling in the country’s otherwise warm climate.

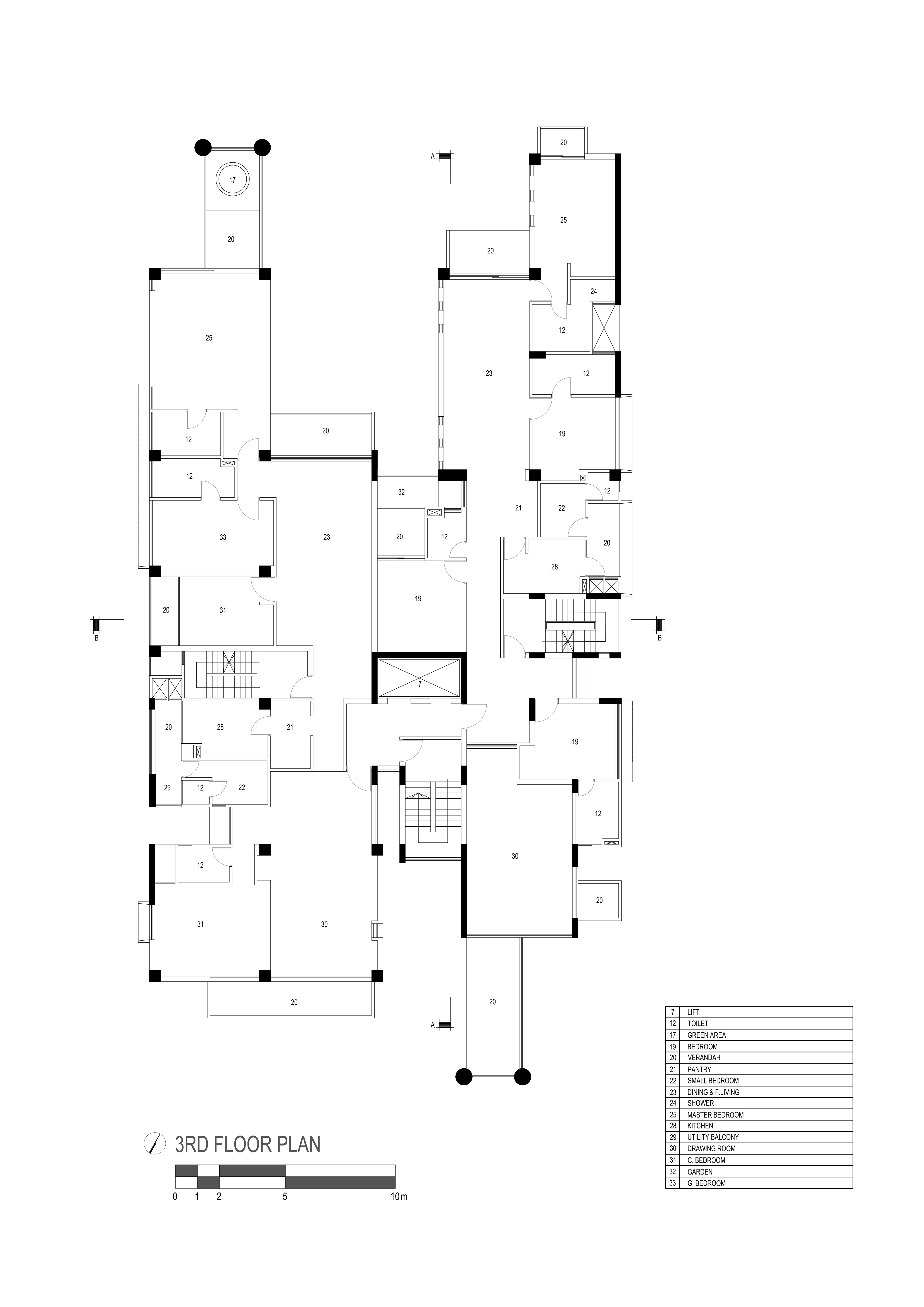
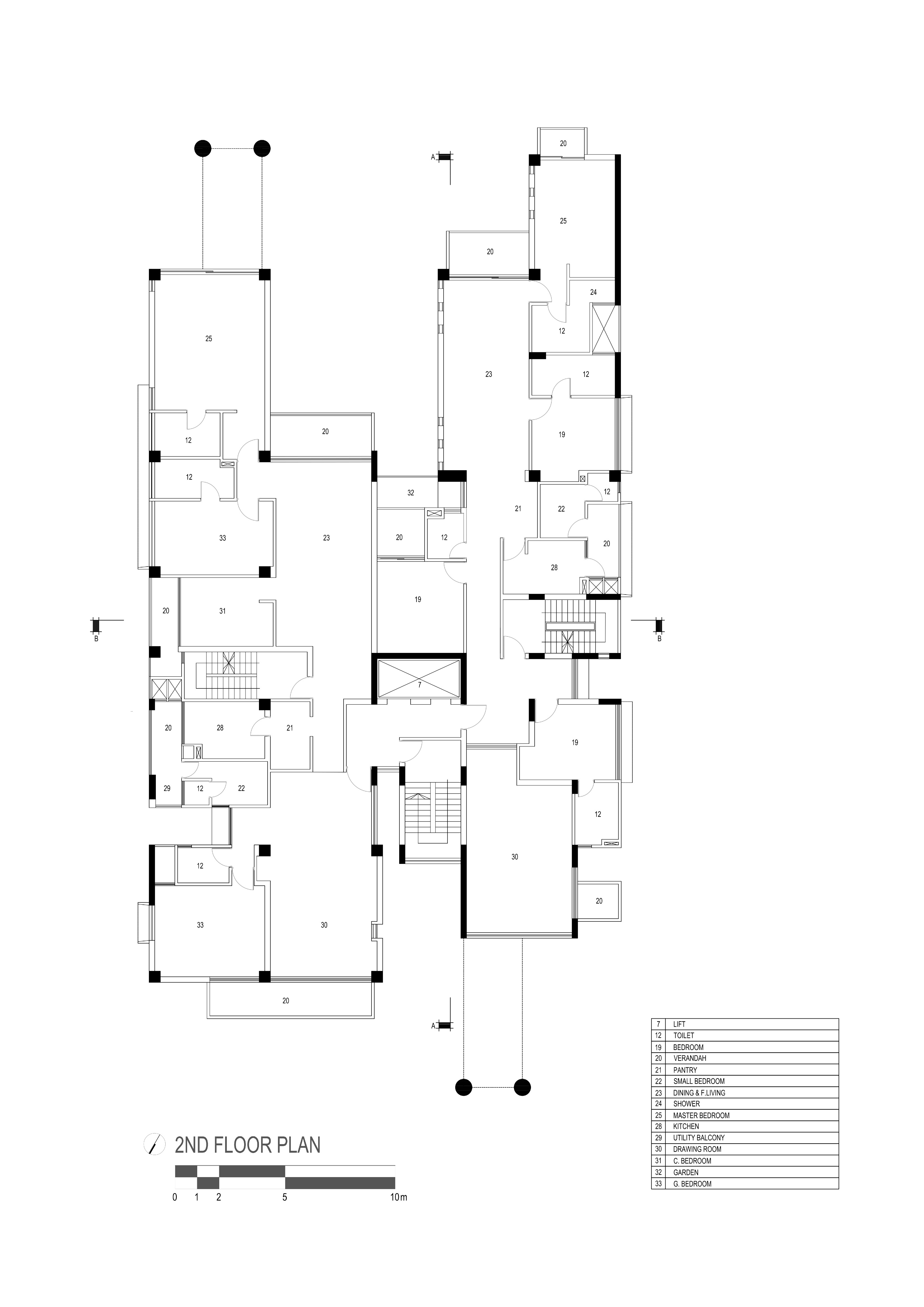
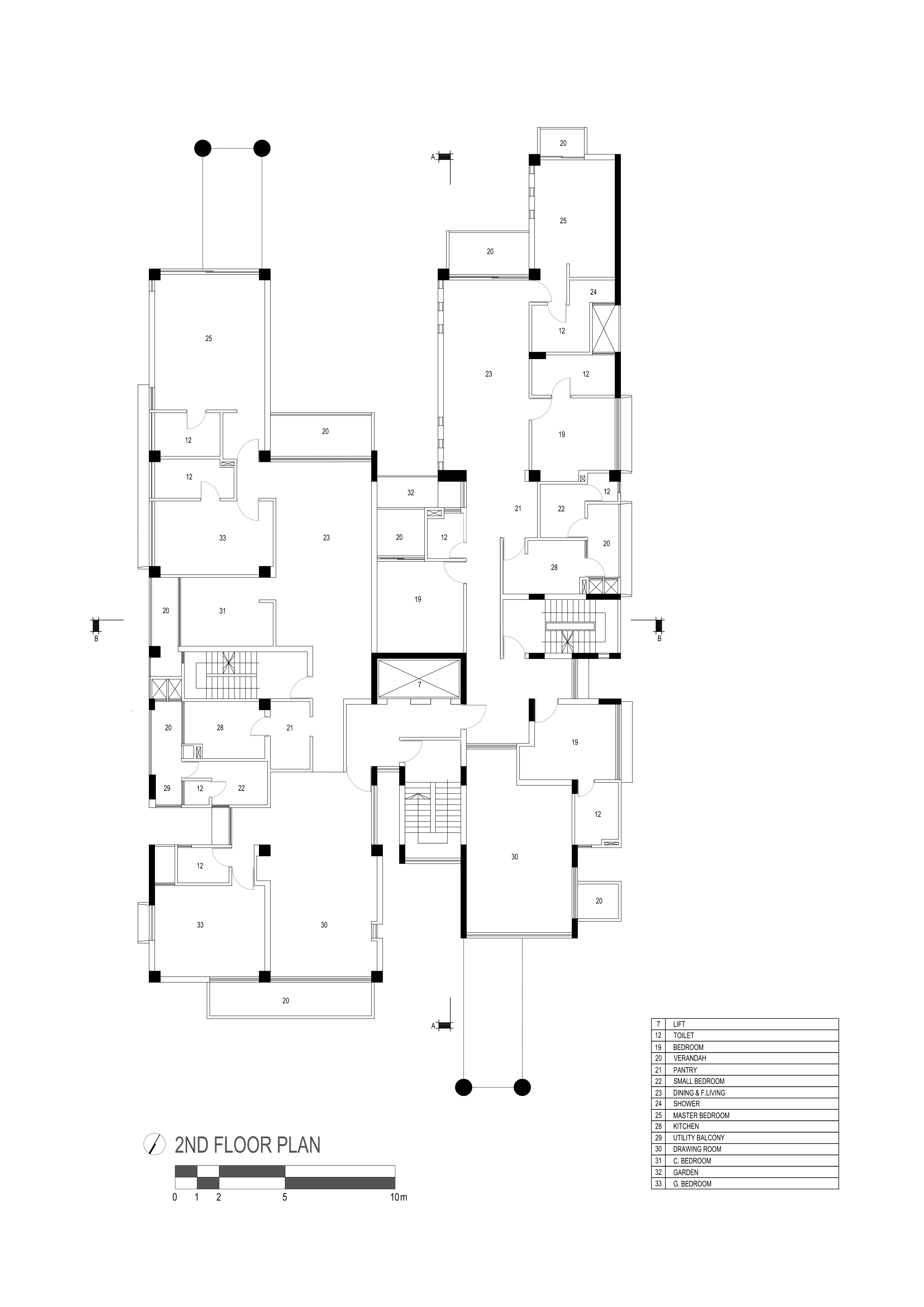
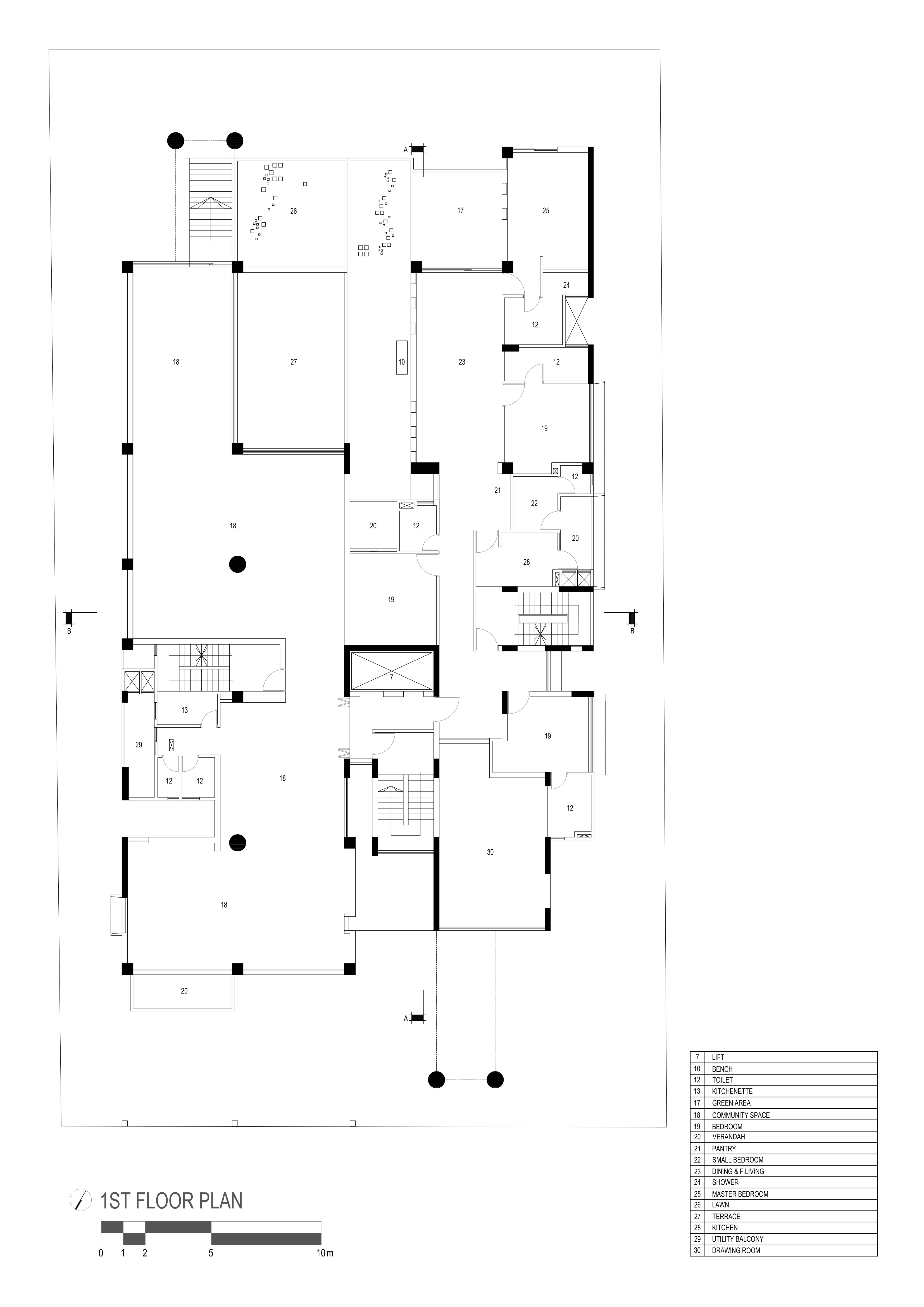
Though at first glance, the residence may seem little more than a very aesthetically pleasing modern structure, much of its true beauty lies in the motivations behind its design. The key philosophy that inspired this work of art is an idea by the renowned Bengali poet and mystic philosopher of late 19th century, Hason Raja, that “a house is unnecessary” and home is only where all our earthly possession lie. Though this may seem contradictory, the genius here is shown in the metal frame protruding from the North and South faces of the building. This frame includes an extended balcony on every floor which offers a view of the city from the front and the building behind it. This is a physical manifestation of Raja’s philosophy, allowing one to embrace the earth around them whilst simultaneously seeing the house from which they are separated yet still feel the togetherness of the whole idea. The numerous balconies on every floor fitted with gardens simply reinforce this earthly grounding. Regardless of how far up one is from the ground, there will still be grass and earth, for those are the possessions which mark our home.
A homely feeling and philosophy are not the only things offered by the building. It is a contribution to the community. A way to link what are otherwise separate worlds: Those inside and those outside. How is this done? Through the use of simple glass boundary walls. While most other boundary walls serve to function as exactly that: a wall of separation. The use of glass is a re-imagination of what boundaries really serve. Though it still serves as a physical barrier between the building’s compound and the street, having glass nullifies the separation of the community. There is no more “us and them”. There is only unity and transparency between those in the compound and those outside. The addition of shrubbery along the walls also reinforces the homely philosophy emphasized by the structure, truly grounding us in a sense of togetherness.
Not only is the building founded in philosophy, it is physically grounded using only local materials (exposed concrete and brickwork) and provides many environmental benefits to both the occupants and its surroundings. The heavy use of concrete makes the building highly resistant to earthquakes. The lake on the south side brings in winds which flow through the open concept spaces within the building, essentially creating a wind tunnel which purifies the air as it flows through the numerous gardens throughout the building. Truly, this is a work of modern art displaying its roots in philosophy and strongly emphasizes the desire for sustainability and eco-friendly living.











































